1350 Ellesmere Road 522, Toronto E09, ON M1P 2X9
MLS®# : E12842648
$ 2,900.00


Saseein Thiyagarajah
Real Estate Broker

Property Description

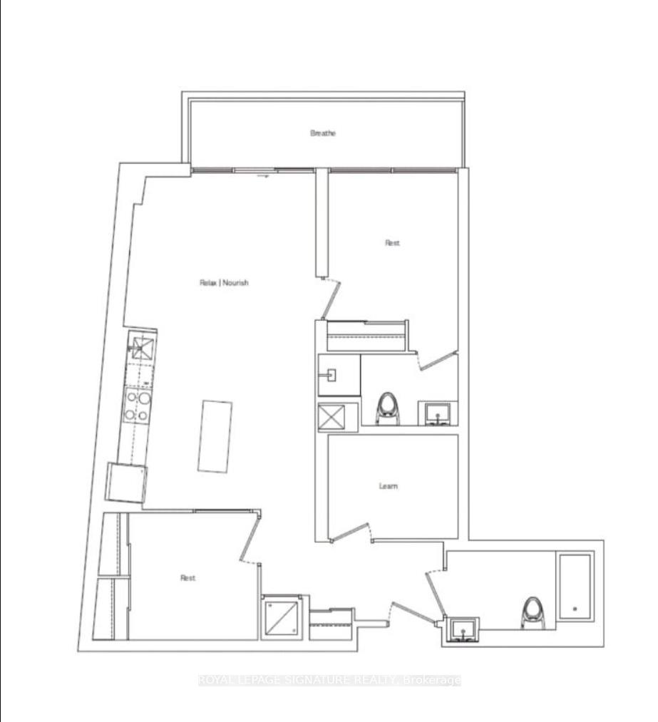
Converted 3-Bedroom Condo At Scarborough Town Centre. Bright, Spacious & Modern 1100+ Sq. Ft. Unit With 2 Full Baths. Originally 2+1, The Den Has Been Converted Into A Functional 3rd Bedroom (Fits A Bed - Please Verify Suitability). Features Zebra Blinds, Full-Size Stainless Steel Appliances All Under Warranty, And The Unit Itself Is Still Under Builder Warranty. Recently Tenanted & Well Maintained With Upgraded Finishes Throughout. Steps To TTC, Scarborough Town Centre, Hwy 401, Dining, Shops & More. Great Value In Today's Market - Just Move In & Enjoy! Electric BBQs Only. 

Location Description

Ellesmere Rd / Brimley Rd

Listing Contracted With: ROYAL LEPAGE SIGNATURE REALTY